
'marthagaarden day care centre' by dorte mandrup arkitekter + LETH & GORI architects, frederiksberg, copenhagen
images courtesy of dorte mandrup arkitekter + leth & gori architects
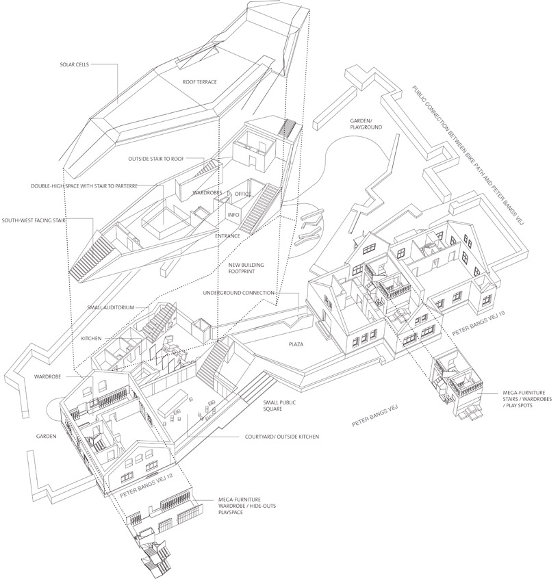
danish practices dorte mandrup arkitekter and LETH & GORI architects in collaboration with marianne levinsen landscape,
henrik larsen and jørgen nielsen engineers have proposed the winning design for the 'marthagården day care centre' in
frederiksberg, copenhagen. positioned amidst two existing villas and a garden, this small scale masterplan creates a protected
environment for children to play, learn and relax. indoor and outdoor spaces contain diverse atmospheres which maintain the
original qualities of the site and support the physical and educational development of the children.

aerial view of complex
rich in character and identity, areas including an accessible sunken courtyard and rooftop playground placed at different
elevations are woven into a singular experience. a series of underground passages preserve the established identity of the
complex while providing connections between the historic structures. integrating architecture, design, nature and technology,
the design produces a safe and inclusive communal place for visitors.

aerial view

aerial view

site plan

section

exploded axon
project info:
team: dorte mandrup arkitekter [full-service consultant], leth & gori architects, marianne levinsen landskab,
henrik larsen rådgivende ingeniørfirma og jørgen nielsen rådgivende ingeniører
competition: municipality of frederiksberg and diakonisse stiftelsen
client: frederiksberg ejendomme og diakonissestiftelsen
location: peter bangsvej 10-12, 2000 frederiksberg
sustainability: meets the energy class 2015 requirements
completion: summer of the 2013
size: existing buildings approx.750m2 and a new building approx. 350m2
total area: 1100 m2